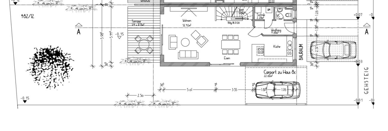
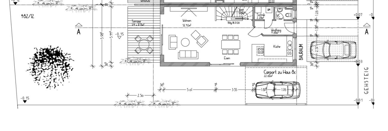
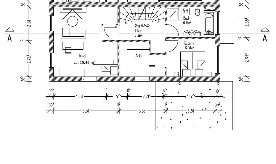
Beschreibung Entdecken Sie Ihr neues Zuhause - in diesem modernen Reiheneckhaus! Dieses vor kurzem erbaute (BJ 2018 / Erstbezug 2019) und nahezu neuwertige Endhaus eines 3-Spänners bietet Ihnen mit einer großzügigen Wohnfläche von ca. 154 m² höchsten Wohnkomfort und eignet sich bestens für eine 3-4-köpfige Familie. Das Grundstück umfasst ca. 330 m² und bietet ausreichend Platz bzw. Gartenfläche. Das Erdgeschoss besticht durch seine offene Raumgestaltung: Wohnen, Essen und Kochen - alles ist hier vereint. Die top-moderne und sehr hochwertige Nolte-Einbauküche mit Geräten der Firma Neff gehört zum Objekt und ist im Mietpreis bereits enthalten. Besonders zu erwähnen ist noch der tolle Eicheparkettboden - dieser sorgt für eine angenehme Wohnatmosphäre. Sie finden im Erdgeschoss noch eine kleine Diele (für Garderobe), ein Gäste-WC, den Technikraum sowie einen kleinen Abstellraum. Das Obergeschoss ist mit einem pflegeleichten Laminat versehen. Sie finden auf dieser Etage zwei komfortable Schlafzimmer - mit einer Größe von ca. 20 und 25 m², eines davon mit Ankleidebereich; und ein voll ausgestattetes Badezimmer mit Wanne, bodenebener Dusche und einem Wäscheabwurf zum Technikraum im Erdgeschoss. Das Bad ist modern gefliest und mit hellgrauen Boden-/ und weißen Wandfliesen versehen. Das Dachgeschoss verfügt über ein großes Studio (mit Küchenanschluss) und ein Duschbad, sowie einer Abstellmöglichkeit. Das Duschbad wird zeitnah installiert und wird, wie der Rest des Hauses, modern gestaltet! Diese Etage eignet sich bestens als Eltern-/ oder Arbeitsbereich. Hier finden Sie einen geschmackvollen und pflegeleichten Design-Vinylboden. Highlight des Hauses ist der schöne Außenbereich. Sie finden hier zwei Terrassen (Süd-/ und Westseite), eine davon ist überdacht. Der Garten grenzt an eine landwirtschaftliche Fläche an, somit blicken Sie immer auf Grünflächen. Hier lassen sich entspannte Stunden verbringen, sei es beim Spielen, Grillen oder einfach nur Relaxen! Das Haus ist mit einer Wärmepumpe ausgestattet, die für eine optimale Temperaturregelung und Energieeffizienz sorgt; perfekt in Kombination mit der Wohnraumbelüftungsanlage (mit Wärmerückgewinnung). Alle Räume verfügen über eine sparsame Fußbodenheizung. Die Fenster verfügen über Rollläden. Ebenso ist eine Netzwerkverkabelung vorhanden. Das Haus wird bereits mit Glasfaser versorgt - somit haben Sie ein super schnelles Internet. Der Vorbereich auf der Hauseingangsseite wurde neu gepflaster; außerdem wurde ein Carport gebaut (mit Zwischentor zum Garten). Dieses stattliche Reiheneckhaus kann ab Januar 2026 bezogen und befindet sich in einer neuen Wohnsiedlung in Wartenberg. Der Kindergarten und die Grundschule sind fußläufig schnell zu errreichen. Somit eignet sich dieses Haus bestens für eine Familie. Bzgl. Haustiere: Eine Katze ist in Ordnung, aber bitte - ohne Hund!