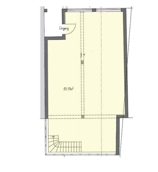
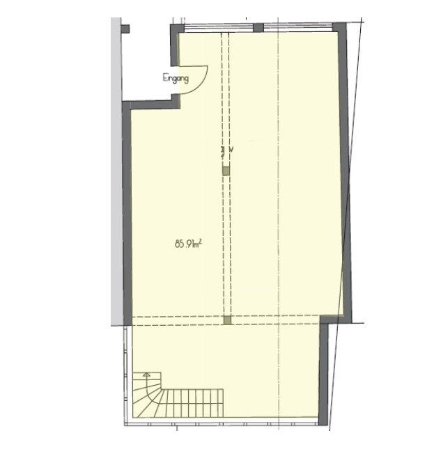
Beschreibung Diese attraktive und helle Gewerbeeinheit, mit einer Gesamtfläche von ca. 119 m², verteilt sich auf das Erd-/ und Untergeschoss und eignet sich perfekt u.a. für Büros aller Art oder auch Selbständige mit Platz für Mitarbeiter und Kollegen. Das Objekt befindet sich verkehrsgünstig gelegen in einer ruhigen Lage von Walpertskirchen. Das Bestandgebäude wurde 1992 um diesen Anbau erweitert. Der Hauptbereich im Erdgeschoss verfügt über eine Fläche von ca. 86 m² und ist mit einem hellen Fliesenbelag versehen. Sehr praktisch in Verbindung mit der vorhandenen Fußbodenheizung. Die große Fensterfront auf der Südseite (mit Beschattungsmöglichkeit) lässt viel Tageslicht herein, sodass die Räume stets hell beleuchtet sind. Auf dieser Etage wurde noch ein separates Einzelbüro (Trockenbau) geschaffen, welches sich auch bei Bedarf einfach zurückbauen lässt. Außerdem ist bei der Gewerbeeinheit ein Glasfaseranschluss nutzbar und die Räume verfügen bereits eine EDV-Verkabelung (CAT6a).
Die installierte Klimaanlage sorgt auch an heißen Tagen für entsprechende Abkühlung. Über eine interne Treppe gelangt man zum Untergeschoss der Einheit. Hier gibt es einen Platz für ihre Küche, einen großzügigen Einbauschrank, zwei getrennte WCs (Damen und Herren) sowie einen Lagerraum. Parkmöglichkeiten befinden sich in unmittelbarer Umgebung. In den aufgeführten Betriebs-/Nebenkosten ist der Verbrauchstrom bereits enthalten. Die Fläche kann spätestens ab 1. März 2026 bezogen werden; ein früherer Bezug ist nach Absprache ebenso möglich. Der Mietvertrag soll eine moderate Mietstaffelung enthalten.