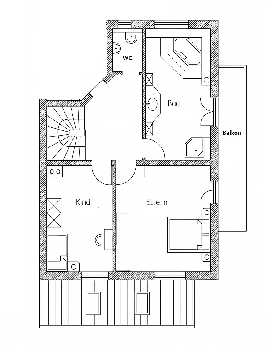
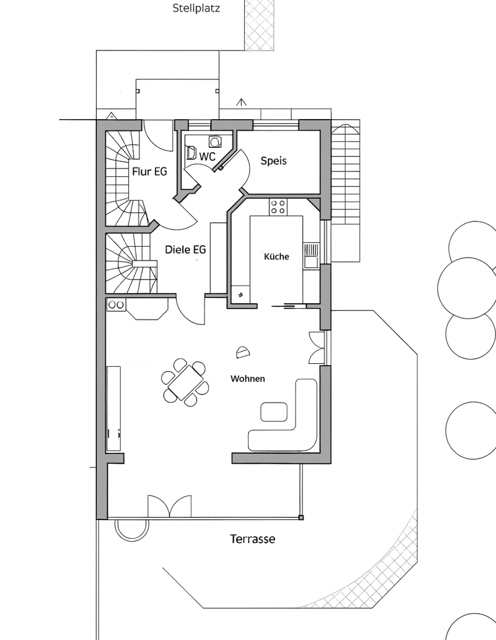
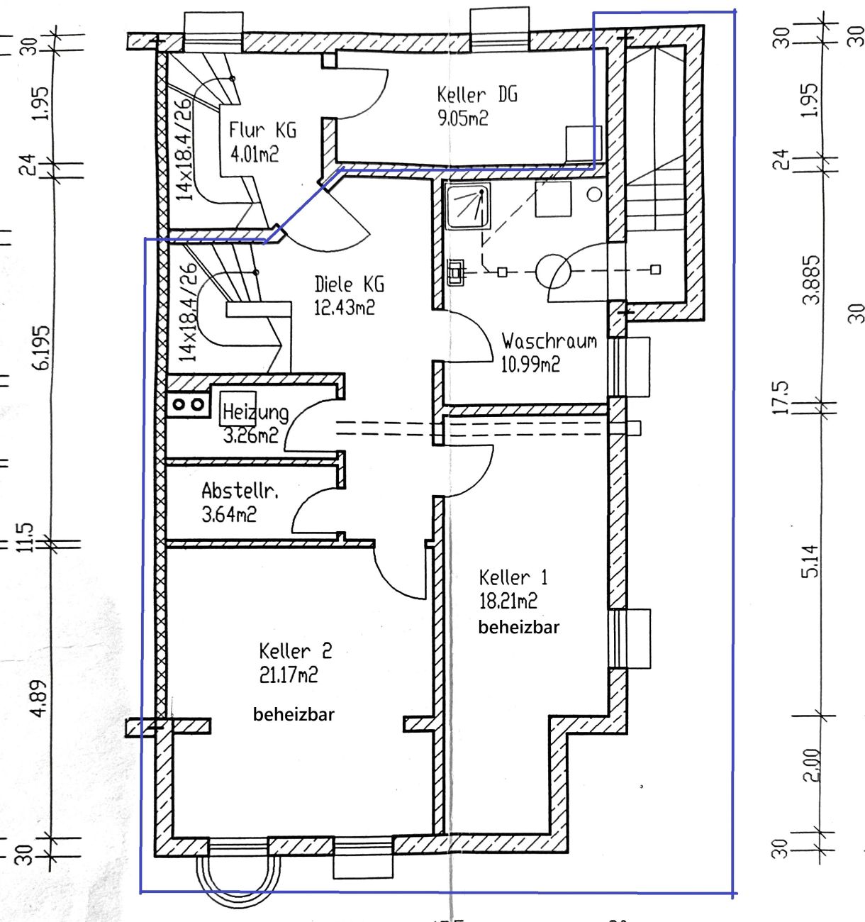
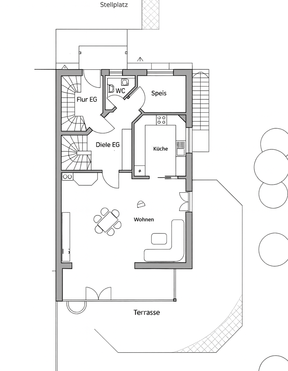
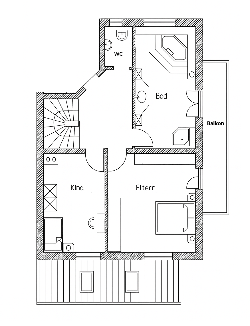
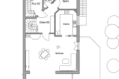
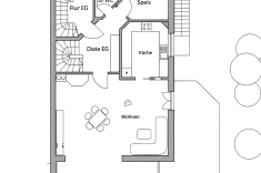
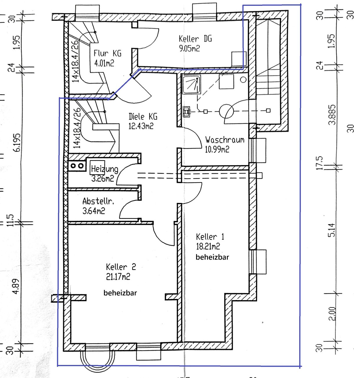
Beschreibung Diese großzügige Wohneinheit erstreck sich über das Erd-/, Ober-/ und Kellergeschoss eines im Jahr 2001 erbauten Zweifamilienhauses - und bietet Ihnen mit ca. 160 m² Wohnfläche viel Platz! Im Erdgeschoss finden Sie die geräumige Diele, ein Gäste-WC, ein mögliches Büro und das Herzstück des Hauses - den sehr großzügigen Wohn-/ und Essbereich mit gemütlichen Kachelofen und Wintergarten; hier grenzt auch die separate Küche (ausgestattet mit einer zeitlosen Einbauküche) an. Vom Wohnbereich gelangen Sie auch zum Garten bzw. zum Außenbereich des Hauses. Die großzügig gestaltete Terrasse, auf der Ost-/ und Südseite, lädt zum Verweilen ein. Auch ein Gerätehaus für Gartengeräte etc. ist vorhanden. Im Obergeschoss finden Sie zwei komfortable Schlafzimmer und ein tolles Bad mit praktischem Wäscheabwurf. Außerdem gibt es auch auf dieser Etage ein separates WC. Der Balkon, auf der Ostseite, hat eine Grundfläche von ca. 10 m² - er kann über ein Schlafzimmer und das Badezimmer betreten werden. Im Kellergeschoss finden Sie eine Waschküche (mit Dusche), ein weiteres WC, einen Lagerraum und zwei wohnraummäßig ausgebaute Zimmer (beheizbar). Diese beiden Räume würden sich optimal als Gästezimmer oder auch als Büro eignen. Die Heizung des Hauses (Gas) wurde erst im August 2025 komplett erneuert. Bei den Fenster handelt es sich um 2-fach-verglaste Kunststofffenster (mit Metallkern). Zum Objekt gehören noch ein Außenstellplatz direkt vor dem Haus, sowie eine große Doppelgarage (mit Lagermöglichkeit). Der Bezug dieser großen Wohneinheit kann ab April 2026 erfolgen, aber bitte - ohne Haustiere.