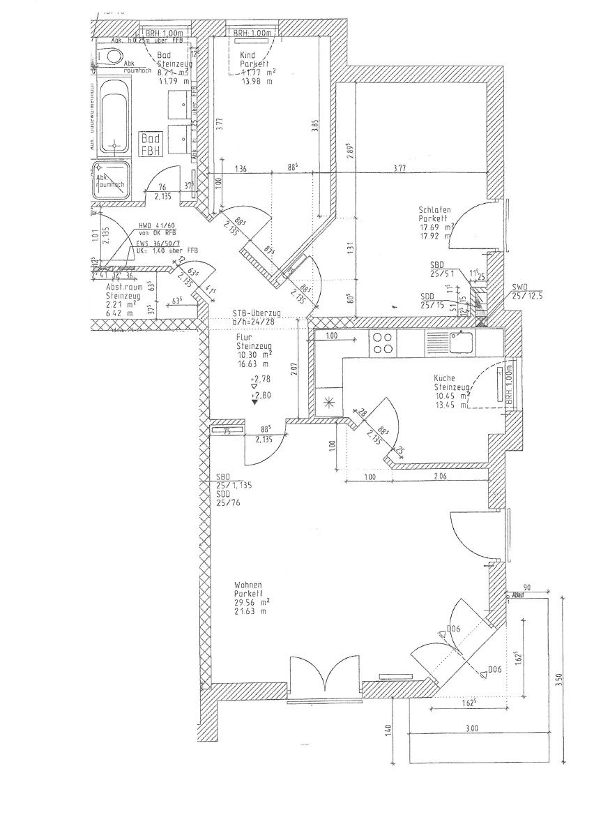
Beschreibung Diese moderne 3-Zimmer-Erdgeschosswohnung befindet sich in einem gepflegten Mehrfamilienhaus (nur acht Parteien) aus dem Jahr 2007 - in Eching - und bietet mit ca. 93 m² Wohnfläche ein komfortables Zuhause mit durchdachter Raumaufteilung. Die S-Bahnhaltestelle erreichen Sie bequem zu Fuß in ca. 5 Minuten. Die Wohnung präsentiert sich in einem sehr guten, gepflegten Zustand und überzeugt durch helle, großzügige Räume. Der Wohn-/Essbereich, die Schlafräume und die Diele sind mit hochwertigem Parkettboden versehen, während das Badezimmer teilgefliest ist und mit ovaler Eckbadewanne, Dusche, zwei Waschbecken, WC, Fenster sowie angenehmer Fußbodenheizung ausgestattet ist. Auch Küche und Flur verfügen über eine Fußbodenheizung. Die weißen Kunststofffenster sind mit elektrischen Rollläden versehen und passen perfekt zu den weißen Innentüren. Highlight dieser Wohnung ist der eigene, ca. 300 m² große Garten (Süd-Ost) mit Terrasse (Markise vorhanden) – der ideale Ort zum Entspannen! Die vorhandene Einbauküche (ohne Kühlschrank), das kleine Gartenhaus und weitere Einrichtungsgegenstände können gegen eine faire Ablöse übernommen werden. Nicht zu vergessen ist noch der sehr praktische Abstellraum. Zur Wohnung gehören zwei Tiefgaragenstellplätze (à € 60,00 mtl.), sowie ein ca. 15 m² großer, beheizbarer Hobbykeller mit Internetanschluss – ein idealer Trainingsraum, oder auch Bereich für das Home-Office! Darüber hinaus stehen ein gemeinschaftlicher Waschtrockenraum mit Anschlüssen für Waschmaschine und Trockner sowie ein Fahrradkeller zur Verfügung. Diese einmalige Wohnung kann ab 01.03.2026 bezogen werden, aber bitte – ohne Hund(e). Die Wohnung eignet sich bestens für ein Paar, aber auch eine 3-köpfige Familie findet hier ein tolles Zuhause!