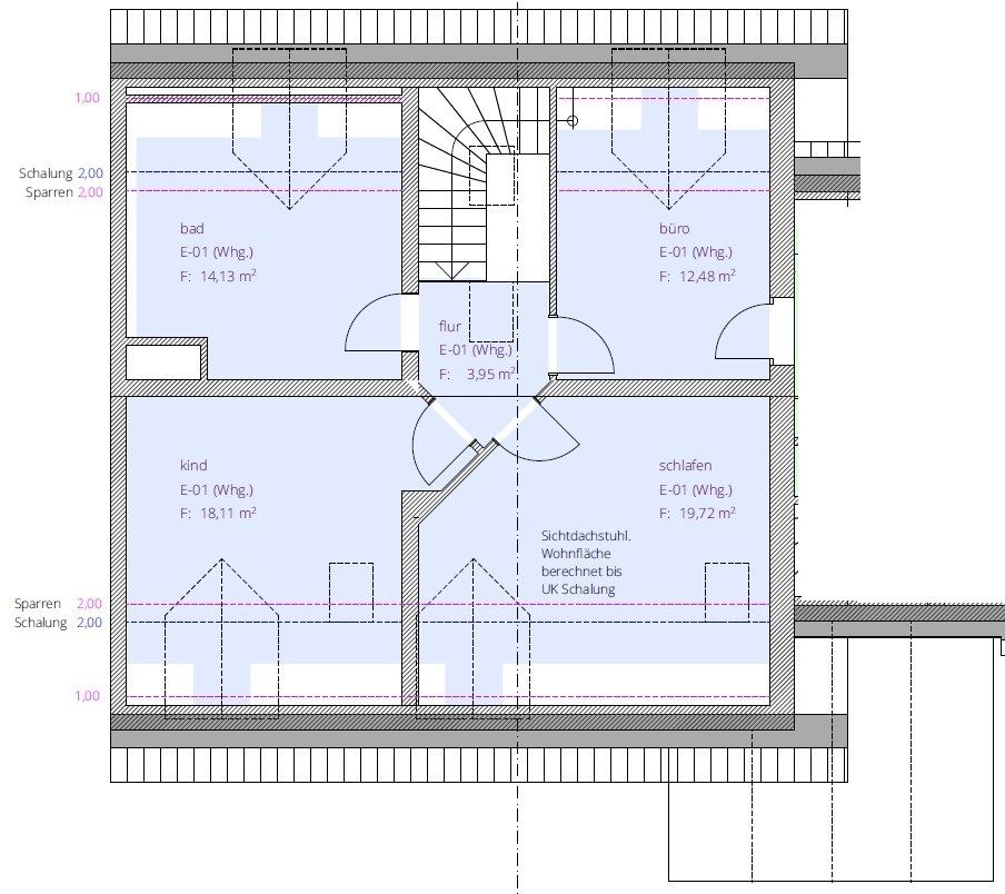
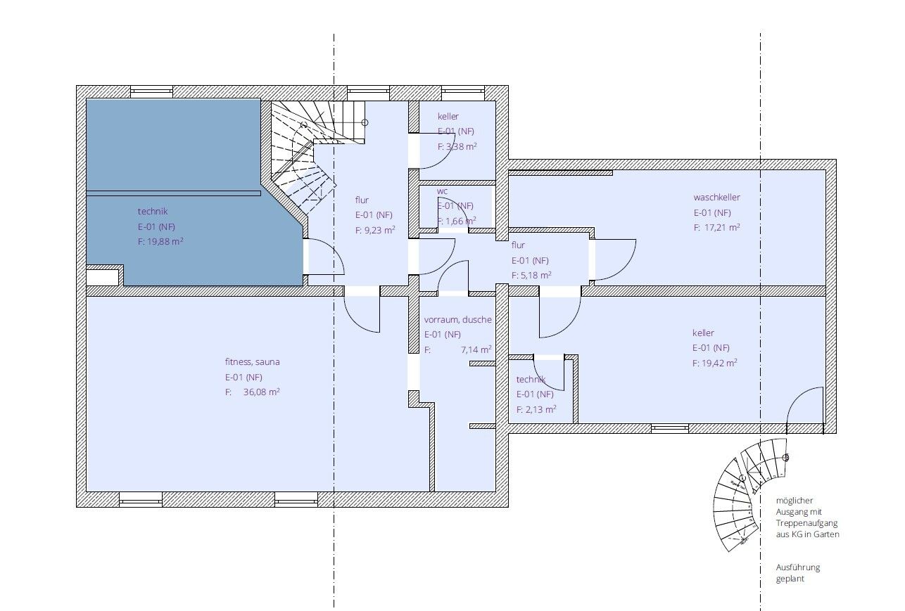
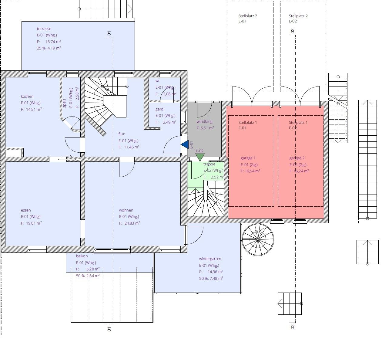
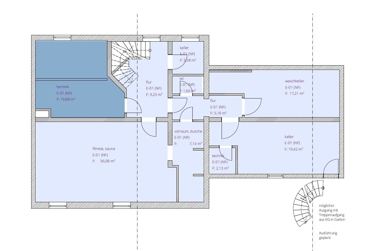
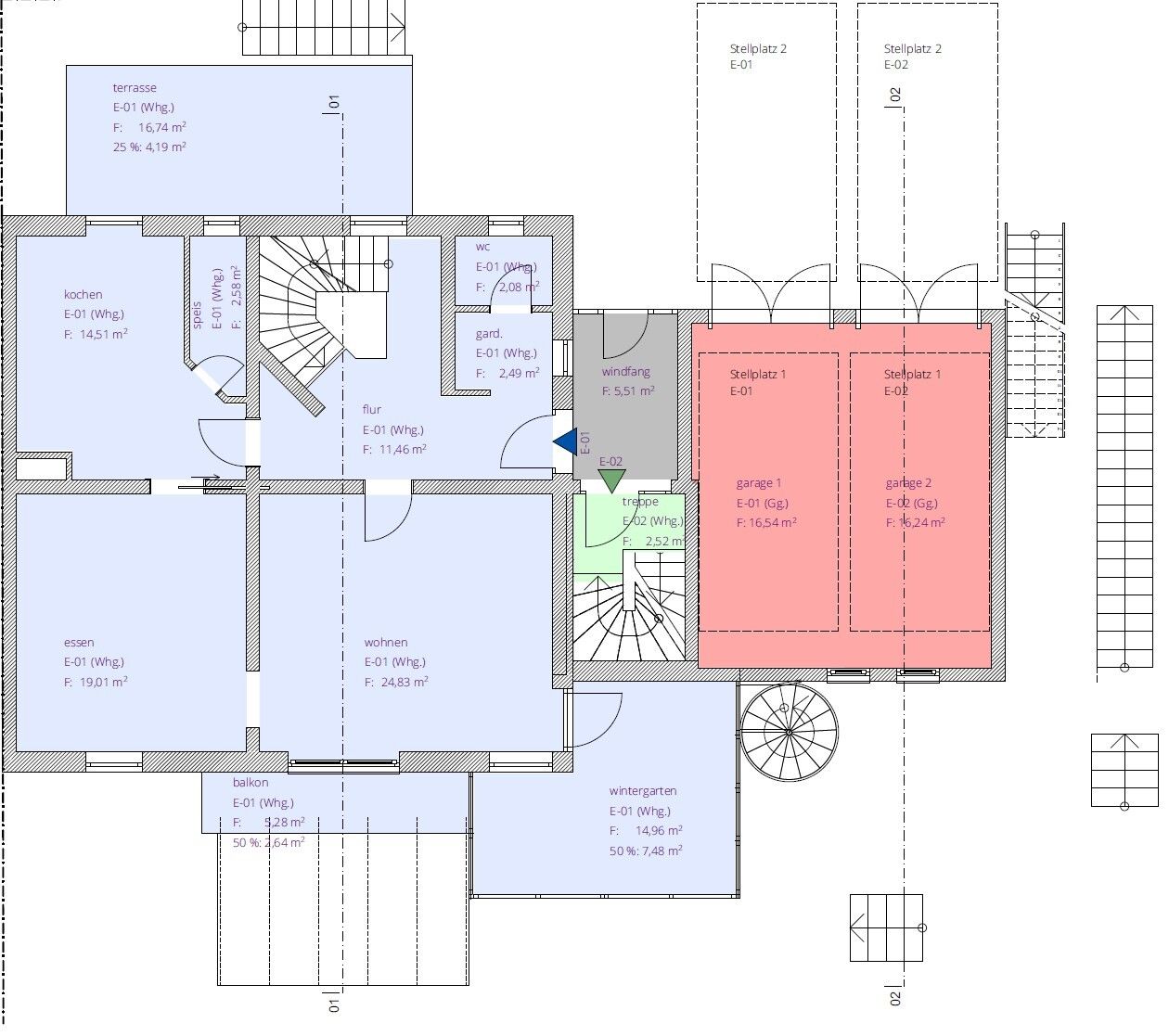
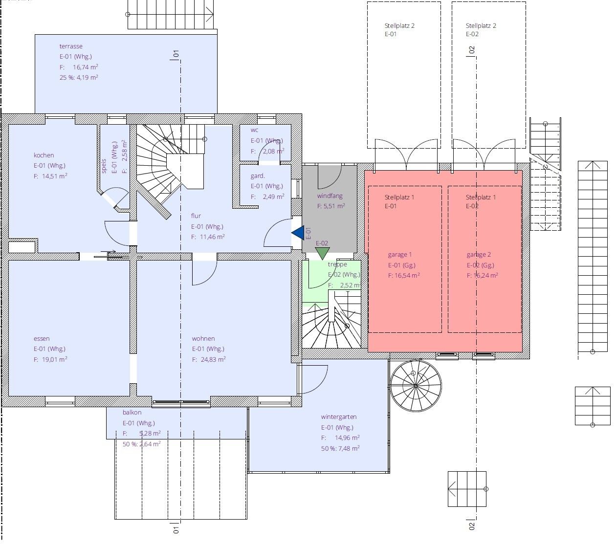
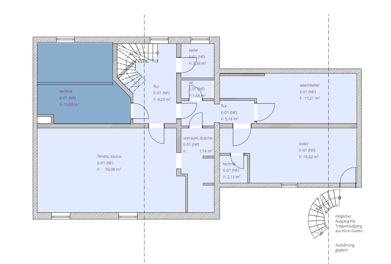
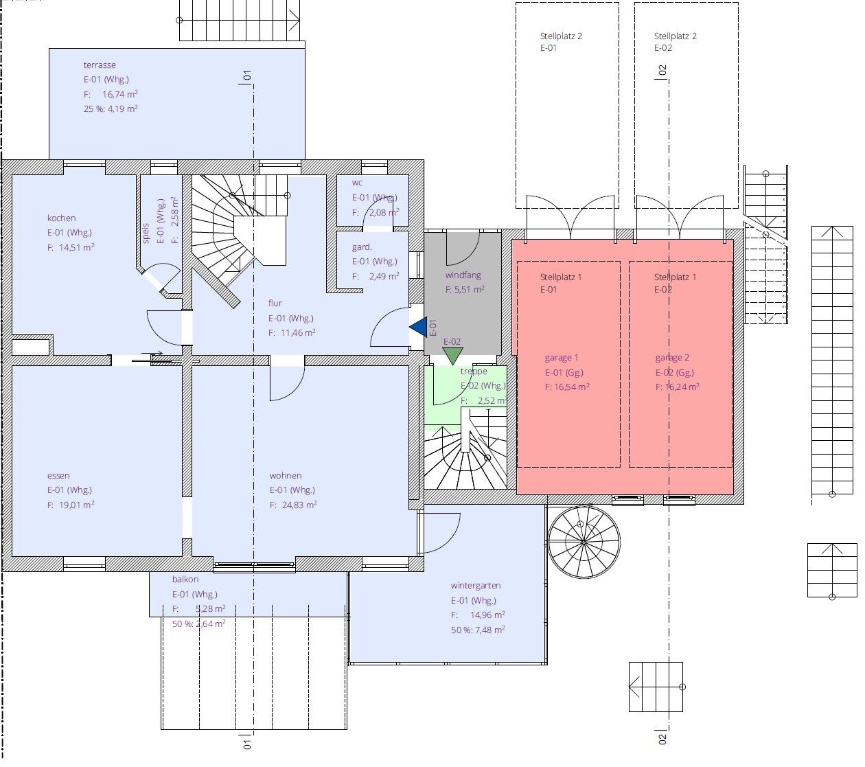
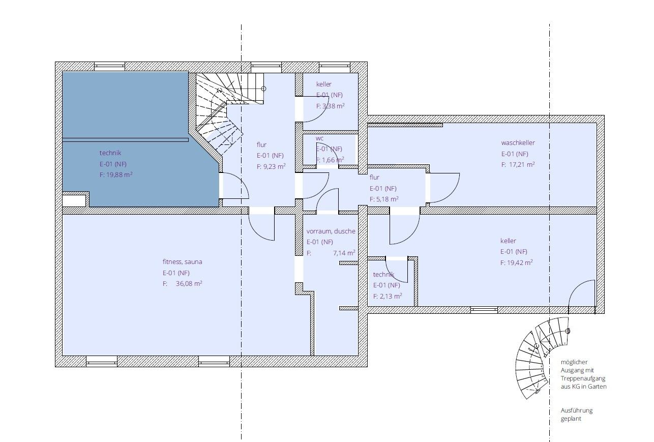
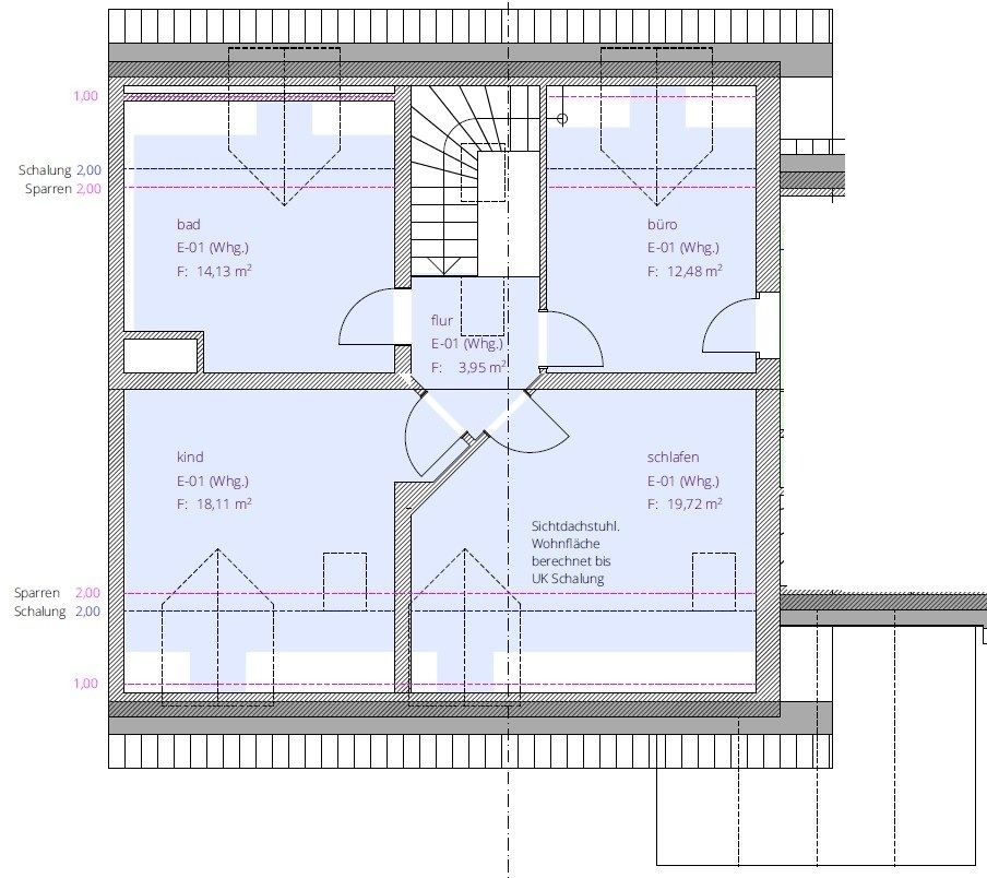
Beschreibung Wohnen wie im Haus! Die angebotene Wohneinheit befindet sich in einem Mehrfamilienhaus und verfügt über eine Wohnfläche von ca. 160 m². Die Einheit verteilt sich auf das Erd-/ und Dachgeschoss des Hauses; Ihnen steht aber auch noch nahezu das gesamte Kellergeschoss zur Verfügung. Im Erdgeschoss finden Sie die großzügige Diele, ein Gäste-WC, das ca. 25 m² große Wohnzimmer mit angrenzedem Wintergarten (mit Beschattung) und Balkon (Südseite), das Esszimmer mit dem gemütlichen Ofen (wasserführend) und die Küche mit Zugang zur Terrasse auf der Nordseite; der ideale Platz an sehr heißen Tagen! Die vorhandende und voll ausgestattete Einbauküche gehört zum Mietobjekt. Das Erdgeschoss ist mit geschmackvollen und pflegeleichten Fliesen versehen. Im Dachgeschoss stehen Ihnen drei komfortable Schlafzimmer und ein sehr großes Badezimmer zur Verfügung. Das Bad verfügt zusäztlich noch über eine Fußbodenheizung. Die Schlafräume sind mit Kork-/ oder Parkettboden versehen. Der offene Sichtdachstuhl sorgt für eine gemütliche Wohnatmosphäre! Besonders zu erwähnen ist noch das Keller-/ bzw. Untergeschoss; hier stehen Ihnen mehre Lagerräume, eine Waschküche, ein Fitnessraum mit Sauna und angrenzender Dusche sowie WC, und ein möglicher Hobbyraum - oder auch Büro - mit Zugang zum Garten zur Verfügung. Der idyllische Garten ist ein toller Rückzugsort und lädt zum Verweilen ein. Hier gibt es auch noch einen Lagerraum für Gartengeräte und einen schönen Freisitz. Für Ihre PKW´s gibt es einen Stellplatz in der Garage und im Carport (im Paket für € 80,00 mtl.); ein weiterer Außenstellplatz könnte noch angemietet werden, sofern Bedarf besteht. Eine Wall-Box ist vorhanden. Diese Einheit eignet sich bestens für eine 3-4-köpfige Familie, oder einen Mieterpaar, das gerne großzügig wohnt. Der Bezug kann im April 2026 erfolgen, ggf. nach Absprache auch schon früher.