Stilvolle und moderne 2-Zimmer-Wohnungen zur Miete in 84428 Buchbach
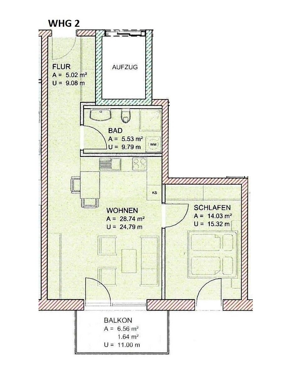
Grundriss
RefNr:2411
ImmobilientypWohnung
Ort
84428 Buchbach
Baujahr2021
Wohnfläche57,00 m²
Zimmer2
Etage2
Parkflächenanzahl1
Heizkosten in Nebenkosten enthalten1
Kaltmiete720,00 €
Nebenkosten120,00 €
Warmiete840,00 €
BeschreibungDiese stilvolle 2-Zimmer-Wohnung befindet sich in zentraler Lage des Marktes Buchbach (Landkreis Mühldorf a. Inn) und eignet sich bestens für einen Singlehaushalt. Die Wohnung befindet sich im Obergeschoss (Lift vorhanden - bis zum Keller) und ist barrierefrei. Die Wohnfläche von ca. 57 m² verteilt sich auf den geräumigen Eingangsbereich/Flur, das hochwertig ausgestattete Badezimmer, ein komfortables Schlafzimmer und den sehr großzügigen Wohn-/ Ess-/ und Kochbereich. Von hier aus gelangen Sie auch auch auf den ca. 6,5 m² großen Südbalkon. Die Einbauküche gehört zur Wohnung. Ausstattung die keine Wünsche offen lässt: Die Wohnung ist mit hochwertigem Parkettboden ausgestattet; das Bad verfügt über eine bodenebene Dusche mit Glasduschwand – helle Wand-/ und dunkle Bodenfliesen runden das Bad ab; der Wohnbereich und das Schlafzimmer verfügen über eine DV-Verkabelung (Netzwerk); ebenso sind elektr. steuerbare Rollladen angebracht. Des Weiteren verfügen alle Räume über eine sparsame Fußbodenheizung – perfekt in Kombination mit den 3-fach-verglasten Fenstern und der Lüftungsanlage. Die Beheizung erfolgt zentral über eine Holz-Pellets-Heizung. Zur Wohnung gehört noch ein geräumiger Kellerraum und ein überdachter PKW-Stellplatz mit Lademöglichkeit (€ 70,00 mtl.). Diese Wohnung bietet Ihnen höchsten Wohnkomfort; der Bezug kann ab Mai 2026 erfolgen - aber bitte - ohne Haustiere.
LageDer Markt Buchbach mit derzeit ca. 3.100 Einwohnern liegt im nordwestlichen Landkreis Mühldorf am Inn. Nach Mühldorf am Inn sind es ca. 25 km, nach Erding ca. 33 km und nach Landshut ca. 35 km. Der Ort selbst bietet alle Geschäfte für den täglichen Bedarf sowie Kindergarten, Grund - und Hauptschule und vielfältige Sportmöglichkeiten. Durch die Erweiterung der A94 haben Sie auch eine sehr gute Verbindung nach München (Auffahrt in Dorfen oder Obertaufkirchen). Der nächste Bahnhof (Regionalbahn) befindet sich in Schwindegg; mit dem PKW in ca. 5 Minuten erreichbar.
um die Nutzung unserer Website besser gestalten zu können, möchten wir Cookies des Dienstes Google Analytics (anonymisiert, auf Grundlage von Art. 6 Abs. 1 lit. f DSGVO.), sowie Google Maps (Anfahrtskarte) einsetzen. Über Ihre Zustimmung würden wir uns freuen. Vielen Dank. Mehr Infos