Beschreibung Wir freuen uns, Ihnen noch eine exklusive Praxiseinheit, oder auch Büroeinheit, in zentraler Lage des Marktes Buchbach anbieten zu können. Die Einheit befindet sich im 1. Obergeschoss des vor kurzem erbauten Gesundheitszentrums der familienfreundlichen Marktgemeinde im Nordwesten des Landkreises Mühldorf a. Inn.
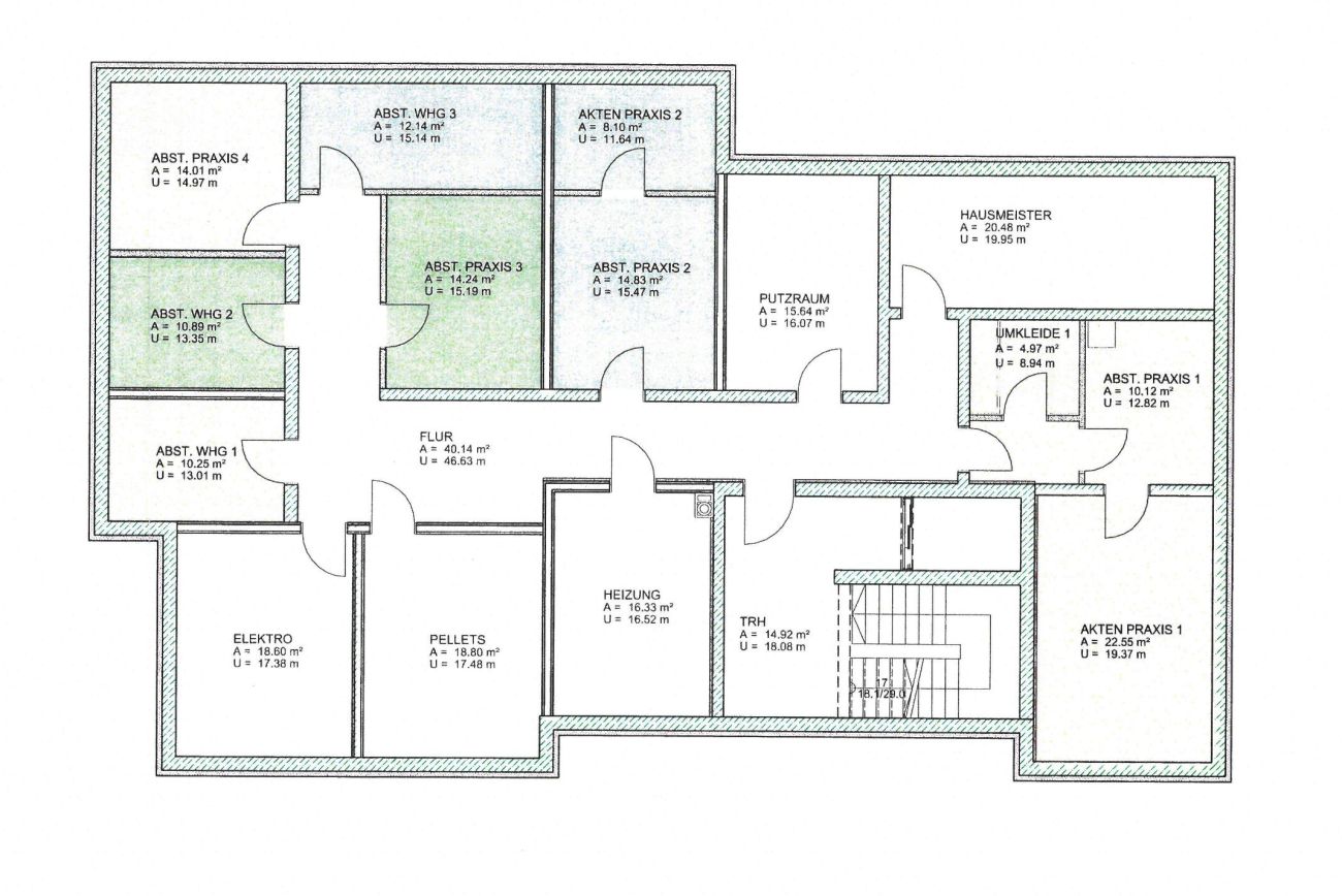
Aufstellung der noch verfügbaren Praxiseinheiten:
Praxiseinheit Nr. 4 – ca. 76 m² / Keller-/Abstellfläche ca. 14 m²
Diese Einheit verteilt sich auf drei separate Räume, einen großen Empfangs-/ und Wartebereich, ein Personal-WC und ein behindertengerechtes Patienten-WC.
Alle Einheiten sind barrierefrei; ein großer Aufzug ist vorhanden. Viele Räume sind mit einem Waschbecken ausgestattet; zwei der Einheiten verfügen über einen Balkon.Ausstattung die keine Wünsche offen lässt: Alle Einheiten sind mit hochwertigem PVC-Fliesenbelag (antistatischer Belag, schwer entflammbar und rollstuhlgerecht) versehen; die sanitären Räumlichkeiten sind mit dunklen Boden-/ und hellen Wandfliesen ausgestattet. Bei den Fenstern handelt es sich um 3-fach verglaste Kunststofffenster mit Isolierverglasung und einer elektrisch steuerbaren Raffstore-Anlage. Eine DV-Verkabelung ist vorhanden. Des Weiteren ist eine zentrale Lüftungsanlage vorhanden. Jede Einheit verfügt über einen Küchenanschluss. Die Beheizung erfolgt zentral über eine Holz-Pellets-Anlage. Es stehen mehrere PKW-Außenstellplätze zur Verfügung à € 30,00 pro Monat. Abstell-/Lagerflächen sind im Kellergeschoss vorhanden. Eine Praxis für Allgemeinmedizin und ein Physiotherapeut sind bereits vorhanden. Die Flächen eigenen sich bestens für Gesundheitsnahe Felder, aber auch eine "klassische" Büronutzung ist möglich.